Price Range: From to

Compare Listings

  • Description
  • Description
  • Address
  • Details
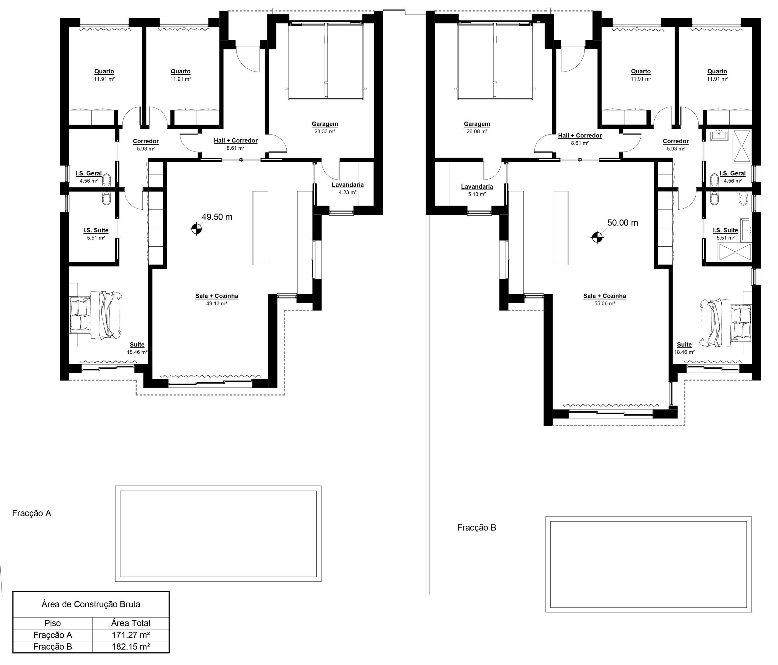
  • Floor Plan

Description

Modern house in project, construction to start soon.

Comprising living room and kitchen in open-concept, pantry and bathroom to support the living area. One bedroom en suite with dressing room, two other bedrooms and a third bathroom. It also contains an office, garage and swimming pool.

Equipped with pre-installation of air conditioning and central vacuum and with solar panels for sanitary water.

Located in Nadadouro, between the city of Caldas da Rainha and Lagoa de Óbidos. 45 minutes away from Lisbon airport and 20 minutes away from several golf courses.

Description

Modern house in project, construction to start soon.

Comprising living room and kitchen in open-concept, pantry and bathroom to support the living area. One bedroom en suite with dressing room, two other bedrooms and a third bathroom. It also contains an office, garage and swimming pool.

Equipped with pre-installation of air conditioning and central vacuum and with solar panels for sanitary water.

Located in Nadadouro, between the city of Caldas da Rainha and Lagoa de Óbidos. 45 minutes away from Lisbon airport and 20 minutes away from several golf courses.

Address

  • City: Caldas da Rainha
  • State/county: Leiria
  • Neighborhood: Nadadouro
  • Country: Portugal, Portuguese Republic

Detail

Updated on May 22, 2024 at 1:05 pm

  • Property Size: 171 m2
  • Property Type: House
  • Property Status: Sell

Floor plans

What's Nearby?

powered by yelp

Arts & Entertainment

  • Mabel Moyano Fine Art (0.22 km)
    0 reviews
  • Makeup by Elvi (0.18 km)
    3 reviews
  • Salon & Spa Blessed (0.24 km)
    0 reviews

Education

  • Lifted Church (0.41 km)
    8 reviews
  • Lifted Academy (0.42 km)
    0 reviews
  • Pinecrest Prep Charter School (0.74 km)
    0 reviews

Health & Medical

  • Lourdes Alf (0.43 km)
    0 reviews
  • CVS Pharmacy (0.54 km)
    0 reviews
  • Mary Family Home (0.67 km)
    0 reviews

Pets

  • Project PetSnip (0.25 km)
    0 reviews
  • West Kendall Animal Hospital (0.25 km)
    67 reviews
  • Royal Dog House (0.45 km)
    2 reviews

Restaurants

  • Gypsy's Subs House (0.16 km)
    0 reviews
  • Taco Lovers (0.18 km)
    11 reviews
  • Wingstop (0.25 km)
    23 reviews

Transportation

  • Ambassador Limousine and Transportation (0.35 km)
    0 reviews
  • Urway Limousines (1.23 km)
    0 reviews
  • Access Limousines, INC (1.93 km)
    0 reviews